Overview
- Land
- 234 m²
- 0
- 0
Description
Build Your Dream Home in Binissalem
Discover a unique opportunity in Binissalem with this 234 m2 plot of land, perfect for creating either a single-family home or a triplex of apartments. Located centrally, the plot is just a short walk from the main square and the train station, providing easy access to local amenities and transportation.
Ideal Development Potential
This plot offers flexibility in design, featuring a preliminary project that outlines the construction of three apartments along with a basement that includes three parking spaces. The project can be tailored to your preferences, allowing for modifications or entirely new designs.
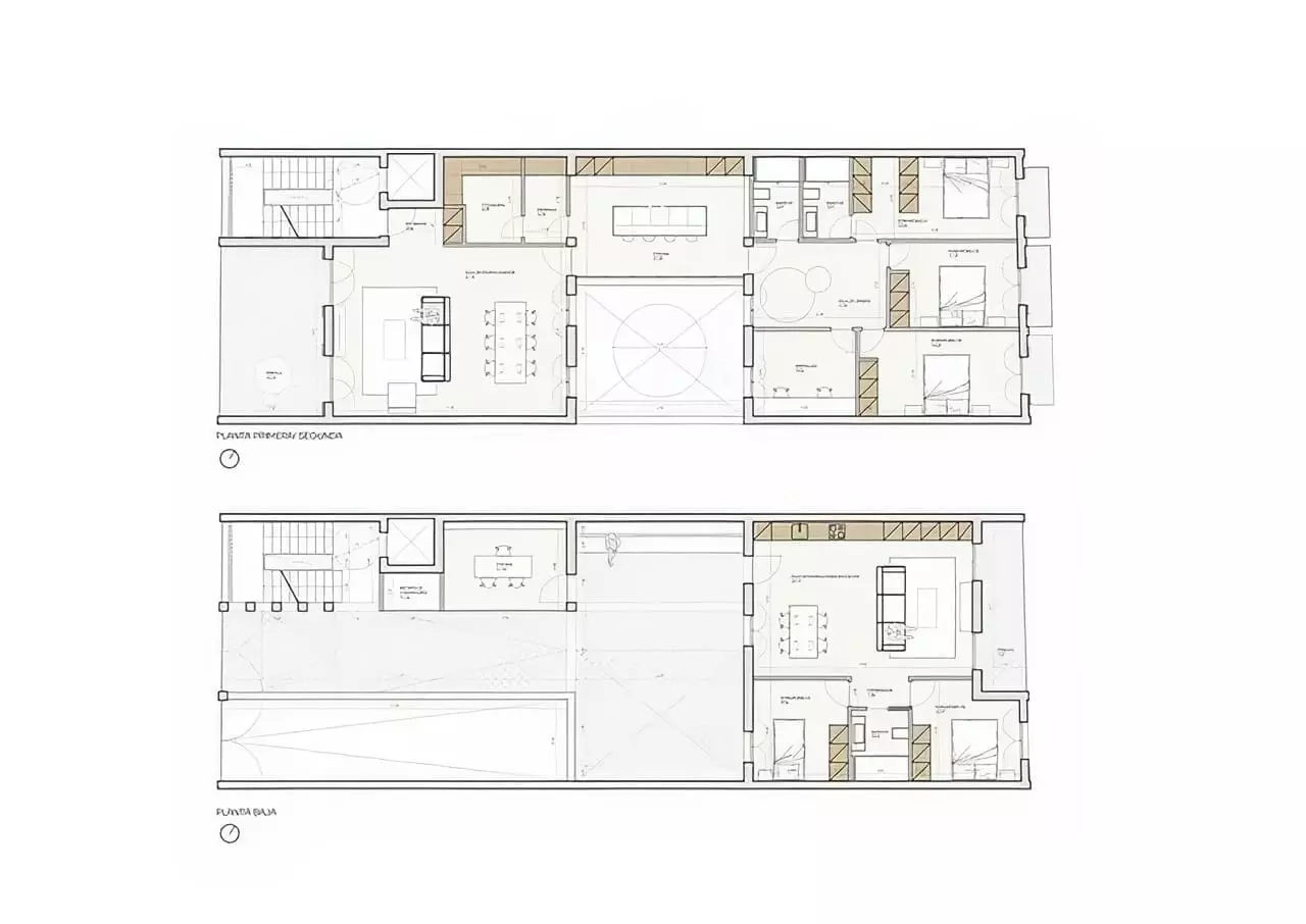
First and Second Floor Layout
The proposed layout for the first and second floors includes a spacious dining room measuring 41 m2, which opens onto a terrace of 18.34 m2. A kitchen of 21.45 m2, along with a pantry (3.78 m2) and a laundry room (6.08 m2), adds convenience to daily living. This level includes three bedrooms: one double bedroom (13.92 m2) with an en suite bathroom and dressing room, another double bedroom (11.27 m2) with a wardrobe, and a third double bedroom (14.20 m2) also featuring a wardrobe. Additional spaces include two bathrooms (3.92 m2 each), an office (9.04 m2), and a games room (11.61 m2). Each bedroom has a balcony, offering outdoor views.
Address
Open on Google Maps- Address: Binissalem, Baleares, Spain
- Country: Spain
Details
Updated on November 8, 2025 at 11:33 pm- Property ID EU-1631699
- Price €225.000
- Land Area 234 m²
- Bedroom 0
- Bathroom 0
- Property Type Land
- Property Status For Sale
- Ref. number 695
Mortgage Estimation
- Down Payment
- Loan Amount
- Monthly Mortgage Payment
- PMI
Similar Listings
Notice something incorrect? Help us improve by reporting any issues. You can let us know what you've found by clicking here: Report a problem.
















