Overview
- 76 m²
- 2
- 1
Description
Overview of the Apartment in Torrevieja
If you’re considering a property in Torrevieja, this apartment might catch your interest. Located in the heart of the town on the Costa Blanca, this property is just steps away from the new port and leisure area. There’s plenty to explore with local shops, various restaurants, and essential services all nearby. The strategic location also places you close to the beaches of Torrevieja, which is ideal for those who enjoy coastal living.
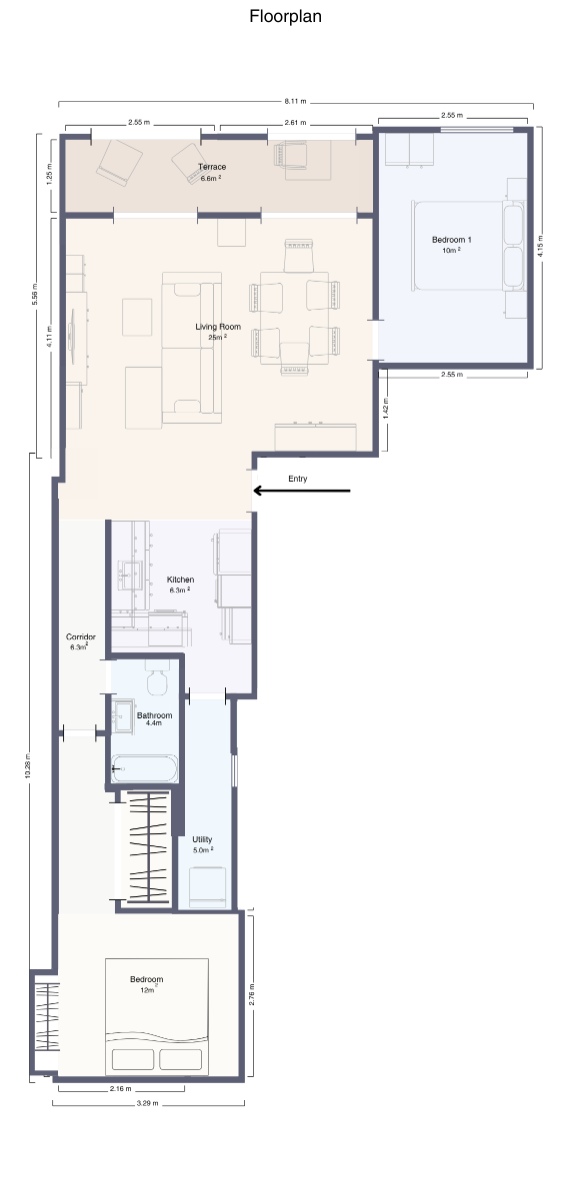
Key Features of the Apartment
This apartment features 2 bedrooms and 1 bathroom, catering well to small families or individuals looking for a residence. One of the highlights is the fully equipped open-plan kitchen. This layout encourages interaction while cooking and dining, making it functional for daily living. The bright, south-facing living room ensures that natural light flows throughout the space.
Features
Details
Updated on December 27, 2025 at 6:53 am- Property ID EU-2636982
- Price €265.000
- Property Size 76 m²
- Bedrooms 2
- Bathroom 1
- Property Status For Sale
- Ref. number MR2-52612
Address
Open on Google Maps- Address: Torrevieja, Alicante, Spain
- Country: Spain
Energy Class
- Energetic class: X
- A+
- A
- B
- C
- D
- E
- F
- G
- H
Mortgage Estimation
- Down Payment
- Loan Amount
- Monthly Mortgage Payment
- PMI
Schedule a Tour
Similar Listings
Apartment Of 243 M² With Garden In Chiclana De La Frontera, Andalusia
Chiclana de la Frontera, Andalusien, ESP DetailsNotice something incorrect? Help us improve by reporting any issues. You can let us know what you've found by clicking here: Report a problem.



















