Search
Maisonette 90 M² On Thassos Island With Sea Views
  • €325.000

Overview

Property ID: EU-1740859
  • Maisonette
  • Property Type
  • 90 m²
  • Area Size
  • 1070 m²
  • Land Area
  • 3
  • Bedrooms
  • 4
  • Bathrooms
  • 1
  • Room
  • 2025
  • Year Built
  • Newly build
  • Condition

Description


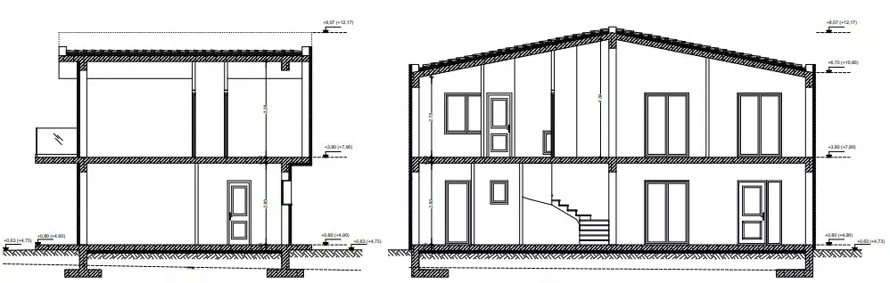
For Sale: Under Construction Maisonette on Thassos Island

Looking for a unique living opportunity on Thassos Island? This under-construction maisonette offers 90 square meters of space, divided across two levels. Designed to accommodate a variety of lifestyles, this property combines functionality with a prime location.

Property Overview

The ground floor features an open-plan living room that flows into the kitchen, creating a welcoming atmosphere. A shower WC on this level adds to the convenience, making it suitable for guests and everyday use. The loft area includes three bedrooms along with another shower WC, ensuring ample space for residents.

Scenic Views

One of the standout features of this maisonette is the stunning views available from the windows. Residents can enjoy vistas of the city, the sea, the mountains, and the surrounding forest. These natural landscapes contribute to a tranquil living environment, ideal for relaxation after a long day.

Show Full Property Description

Details

Updated on April 28, 2026 at 11:05 pm
  • Property ID EU-1740859
  • Price €325.000
  • Property Size 90 m²
  • Land Area 1070 m²
  • Bedrooms 3
  • Room 1
  • Bathrooms 4
  • Year Built 2025
  • Property Type Maisonette
  • Property Status For Sale
  • Condition Newly build
  • Ref. number 60467
  • Address: Thasos, Kavala Prefecture, Macedonia, Greece
  • Zip/Postal Code: 64004
  • Country: Greece

Energy Class

  • Energetic class: A+
  • | Energy class A+
    A+
  • A
  • B
  • C
  • D
  • E
  • F
  • G
  • H

Mortgage Estimation

Schedule a Tour

Tour Type

Similar Listings

Disclaimer: Please note that this property listing is an automatically generated advertisement. The descriptions have been rewritten by our AI agent and should not be considered official property particulars. While European.realestate requires all advertisers to provide accurate information, we do not independently verify the details and cannot accept liability for any inaccuracies. Always contact the listing agent directly for the most accurate and up-to-date information about the property. We strongly recommend obtaining independent legal advice before proceeding with any property purchase.

Notice something incorrect? Help us improve by reporting any issues. You can let us know what you've found by clicking here: Report a problem.