Overview
- Land
- m²
- 41630 m²
- 0
- 0
Description
A Generous Building Plot in Yecla
This is a substantial piece of land, a real whopper, measuring over 40,000 square meters, located in the Yecla area. It’s not just a flat patch of ground; the terrain has been shaped into several distinct levels. From these vantage points, you get some pretty impressive views of the mountains that surround the region. The practicalities have been thought of too, as there’s an existing connection for irrigation water, and the electricity connection is sorted and actually included in the price. So, setting up utilities won’t be an immediate headache.
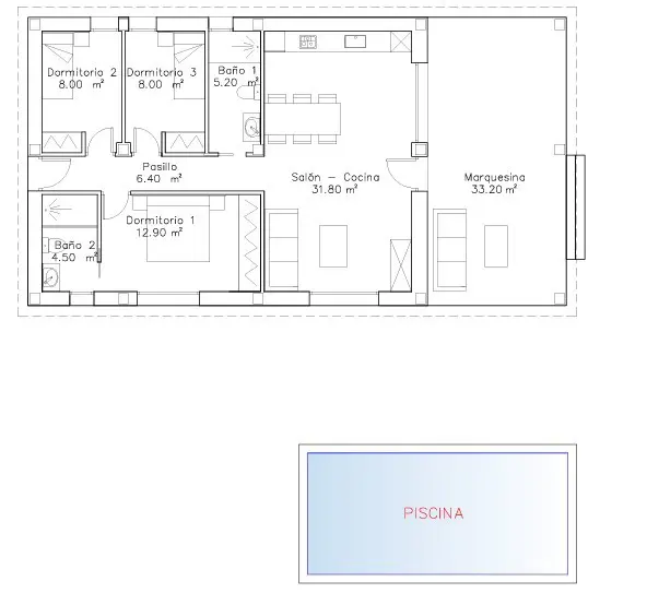
A House Design Included
What makes this plot particularly interesting, and a bit of a bonus, is that it comes with a pre-existing design for a house. This means you’re not starting from scratch in terms of architectural planning. The design sketches out a home that would feature three bedrooms, two bathrooms, and an open-plan living area that combines the kitchen and the lounge. There’s also provision for a covered porch, which is always a nice touch for outdoor living, and a 4×8 meter swimming pool.
Features
Details
Updated on April 26, 2026 at 12:09 am- Property ID EU-2973921
- Price €61.000
- Land Area 41630 m²
- Bedroom 0
- Bathroom 0
- Property Type Land
- Property Status For Sale
- Ref. number ETAC042
Video
Address
Open on Google Maps- Address: Yecla, Murcia, Spain
- Country: Spain
Energy Class
- Energetic class: Ask Agent
- A+
- A
- B
- C
- D
- E
- F
- G
- H
Mortgage Estimation
- Down Payment
- Loan Amount
- Monthly Mortgage Payment
- PMI
Schedule a Tour
Similar Listings
Notice something incorrect? Help us improve by reporting any issues. You can let us know what you've found by clicking here: Report a problem.











