Overview
- Detached House
- 59 m²
- 635 m²
- 2
- 1
- 1
- 2024
- Good condition
Description
Address Details
Address: Atanyember utca 24/A, Komárom, 2900, Hungary
Overview of the Property
This property offers a renovated holiday home in a unique setting by the banks of the Danube. It functions as both a retreat and an income-generating business, appealing to a variety of potential buyers. The location is notable, as it is just steps away from a beach area and a popular spot for kayaking and canoeing, making it an attractive option for tourists and locals.
Property Description
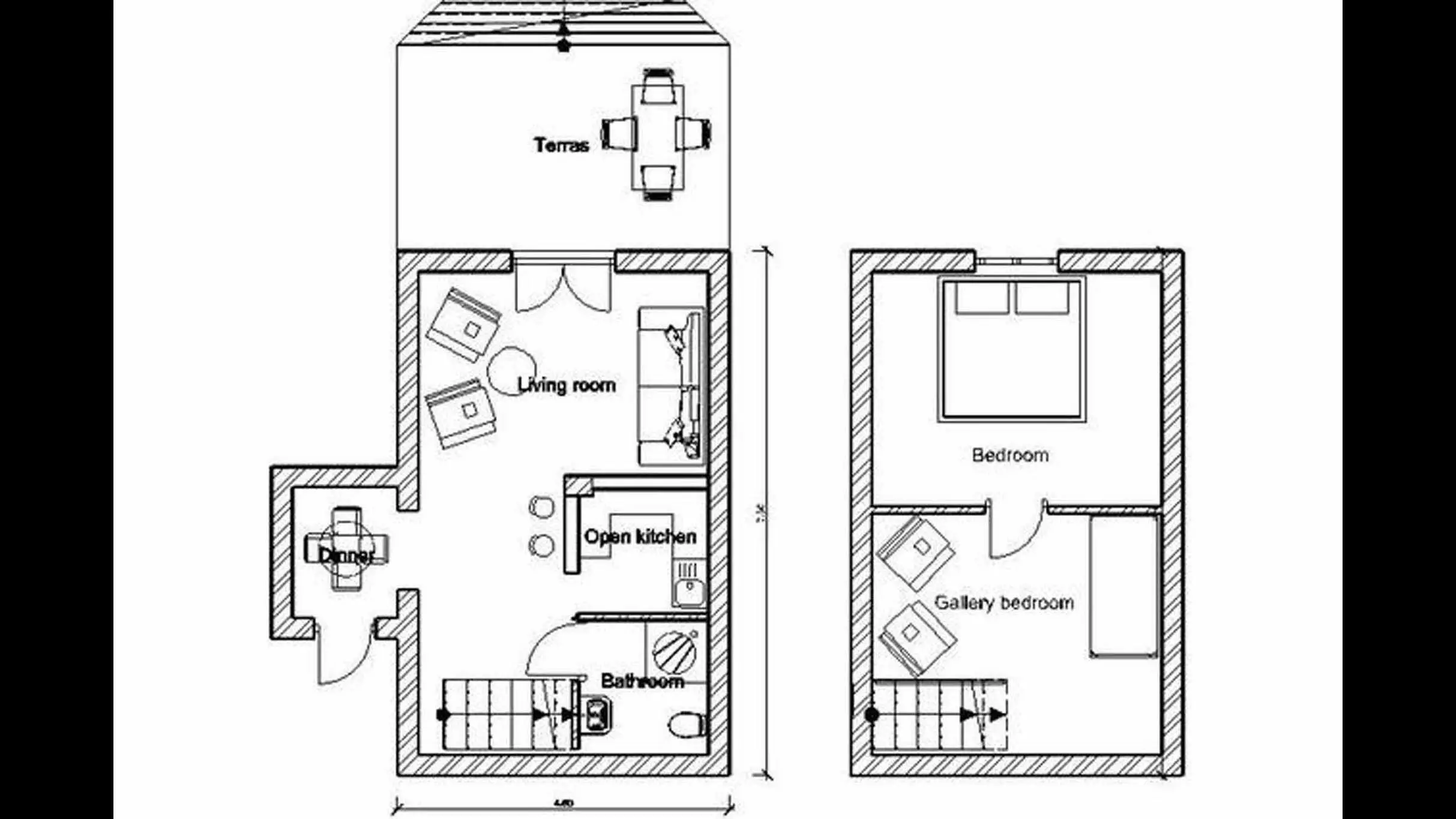
The cottage spans a total usable floor space of 59 m² across two levels. The renovation reflects a contemporary approach while maintaining functionality. The ground floor contains a living room that features a fireplace, along with an open-plan kitchen that allows for easy interaction with guests or family. On the upper level, you will find two bedrooms, with one bedroom providing access to a 4.5 m² balcony that overlooks the garden.This fully renovated, Provence-style holiday home is a perfect blend of a tranquil retreat and a profitable business. Located directly on the banks of the Danube, just steps from a free beach and a popular kayak and canoe station, it offers a serene, natural setting with stunning panoramic river views. The property’s location is a major asset, highly sought after by tourists and locals alike.
Property Documents
Video
Address
Open on Google Maps- Address: Aranyember utca 24/A
- Zip/Postal Code: 2903
- Country: Hungary
Details
Updated on September 22, 2025 at 8:07 pm- Property ID EU-1898295
- Price €169.000
- Property Size 59 m²
- Land Area 635 m²
- Bedrooms 2
- Room 1
- Bathroom 1
- Property Type Detached House
- Property Status For Sale
- Condition Good condition
- Year Renovated 2024
Additional details
- grill 1
- refrigerator 1
- washing machine 1
Mortgage Estimation
- Down Payment
- Loan Amount
- Monthly Mortgage Payment
- PMI
Notice something incorrect? Help us improve by reporting any issues. You can let us know what you've found by clicking here: Report a problem.






























