Overview
- 133 m²
- 133 m²
- 0
- 1
Description
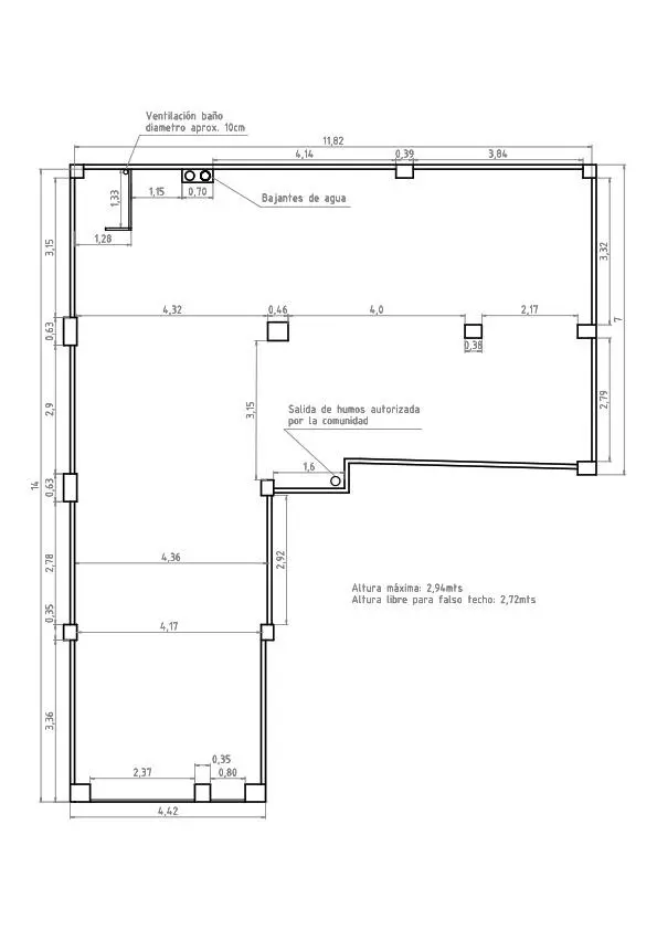
This is a versatile space with immense potential, ideal for both investors and entrepreneurs looking to launch a new project. The significant added value of this property is that it has express written authorization from the homeowners’ association to install a smoke extraction system, making it perfect for hospitality businesses (restaurants, cafes, bakeries, dark kitchens, etc.) or for a change of use to residential. Electricity and water services are connected.
Key Features
The property spans 125 m2 built according to the Cadastre, with an L-shaped layout that allows for the differentiation of distinct work areas or customer service zones. The maximum ceiling height is an excellent 2.94 meters, leaving a free height of 2.72 meters if a false ceiling is desired.
Installations and Access
It includes a basic toilet with its own ventilation, an updated electrical panel with industrial-type sockets, and identification of the building’s water downpipes. The entrance is direct from the street, protected by a security metal roller shutter and interior carpentry doors.
Details
Updated on March 21, 2026 at 2:25 am- Property ID EU-2970658
- Price €75.000
- Property Size 133 m²
- Land Area 133 m²
- Bedroom 0
- Bathroom 1
- Property Status For Sale
- Ref. number 3009_026989/11152
Address
Open on Google Maps- Address: Elche, ALICANTE, Spain
- Country: Spain
Mortgage Estimation
- Down Payment
- Loan Amount
- Monthly Mortgage Payment
- PMI
Schedule a Tour
Similar Listings
Apartment Of 243 M² With Garden In Chiclana De La Frontera, Andalusia
Chiclana de la Frontera, Andalusien, ESP DetailsNotice something incorrect? Help us improve by reporting any issues. You can let us know what you've found by clicking here: Report a problem.














