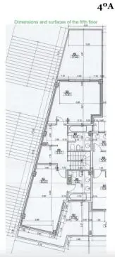
Overview
- 109 m²
- m²
- 1
- 1
- Newly build
Description
Discover Your New Home: Apartments Blending Elegance and Nature
Welcome to a place where contemporary living meets the beauty of the natural world. We’re excited to introduce a collection of apartments designed for those who appreciate both style and serenity. These homes offer a range of options, with configurations of 2 to 3 bedrooms, and each one has been carefully planned and constructed.
Living Spaces Designed for You
When you explore these properties, you’ll find that they provide living areas that fall within a size range of 90 square meters up to 257 square meters. This means there’s a good amount of room to settle in and make your own. The living areas themselves are designed to be both bright and open, creating a pleasant atmosphere. From these spaces, you’ll also be able to take in the surrounding views, which are quite remarkable and offer a connection to the landscape.
Features
Details
Updated on March 17, 2026 at 1:01 am- Property ID EU-2916828
- Price €149.000
- Property Size 109 m²
- Bedroom 1
- Bathroom 1
- Property Status For Sale
- Condition Newly build
- Ref. number 466560__COMPLEX__932/13477
Address
Open on Google Maps- Address: Relleu, ALICANTE, Spain
- Country: Spain
Mortgage Estimation
- Down Payment
- Loan Amount
- Monthly Mortgage Payment
- PMI
Schedule a Tour
Similar Listings
Apartment Of 243 M² With Garden In Chiclana De La Frontera, Andalusia
Chiclana de la Frontera, Andalusien, ESP DetailsNotice something incorrect? Help us improve by reporting any issues. You can let us know what you've found by clicking here: Report a problem.










