- €652.000
Overview
- Maisonette
- 118 m²
- 2
- 4
- 1
- 2025
- Newly build
Description
Property Overview
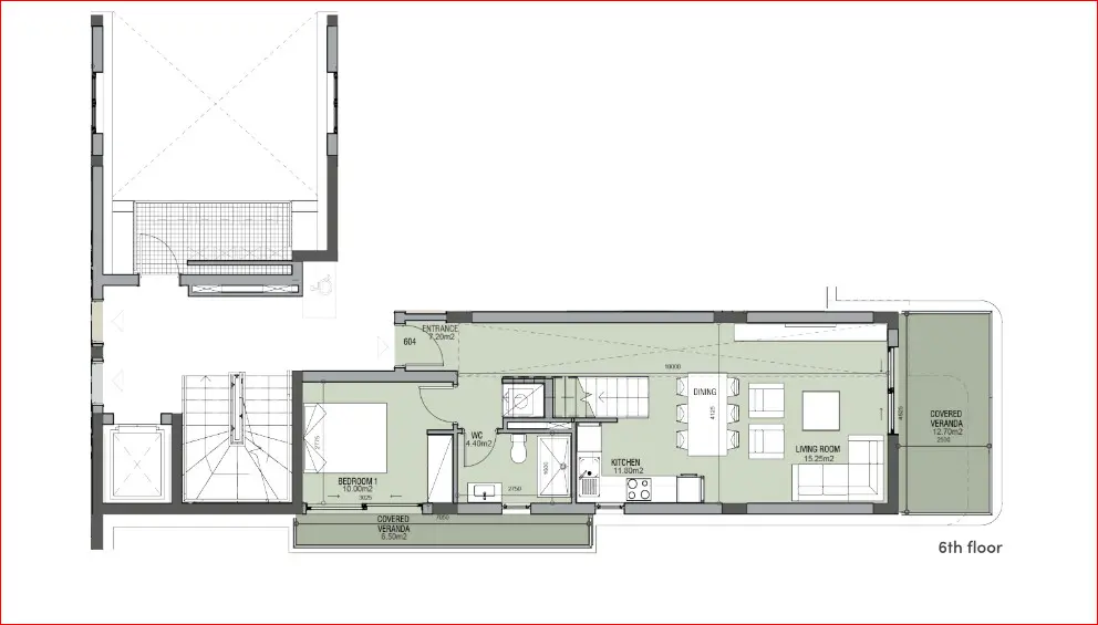
Introducing a maisonette for sale in Athens, currently under construction, offering a total area of 118 square meters. This two-level property presents an interesting opportunity for potential buyers looking for a modern living space in a vibrant urban setting.
Layout and Features
The layout of the maisonette is divided across the 6th and 7th floors. On the 6th floor, you will find one bedroom, a living room that merges with the kitchen space, and a shower WC. This arrangement supports a convenient lifestyle, ideal for individuals or small families.
On the 7th floor, the setup includes an additional bedroom, another shower WC, and a dedicated office space. This flexible design can cater to various needs, whether for working from home or accommodating guests.
Views and Additional Amenities
This property offers impressive views of the city, the sea, and the mountains, visible from its windows. Such a perspective can be a notable feature for anyone who values surrounding landscapes.
Details
Updated on April 25, 2026 at 11:30 pm- Property ID EU-2262861
- Price €652.000
- Property Size 118 m²
- Bedrooms 2
- Room 1
- Bathrooms 4
- Year Built 2025
- Property Type Maisonette
- Property Status For Sale
- Condition Newly build
- Ref. number 57989
Address
Open on Google Maps- Address: Palaio Faliro, Athens - South, Attica, Greece
- Zip/Postal Code: 17563
- Country: Greece
Mortgage Estimation
- Down Payment
- Loan Amount
- Monthly Mortgage Payment
- PMI
Schedule a Tour
Similar Listings
Maisonette Of 127 M² In Thessaloniki
Toumpa, Thessaloniki - Municipality, Thessaloniki, Greece DetailsNotice something incorrect? Help us improve by reporting any issues. You can let us know what you've found by clicking here: Report a problem.














